Aluminium-Zargen · WC-Trennwände · Mobile Trennwände · Alu-Zargen
Raumspartüren
header_kulturzentrum
RAUMSPARTÜREN
Raumspartüren
AE Raumspartürelement 650-02
Aluminiumzarge Kantspiegel (AE 230) mit Raumspartür, stumpf, für fertige Wände, zweischalig, mit Wanddickenausgleich
AE Raumspartürelement 650-04
Aluminiumzarge Kantspiegel (AE 230) mit Raumspartür, stumpf, für fertige Wände, zweischalig, mit Wanddickenausgleich
AE Raumspartürelement 650-06
Aluminiumzarge Kantspiegel (AE 230) mit Raumspartür, stumpf, für fertige Wände, zweischalig, ohne Wanddickenausgleich
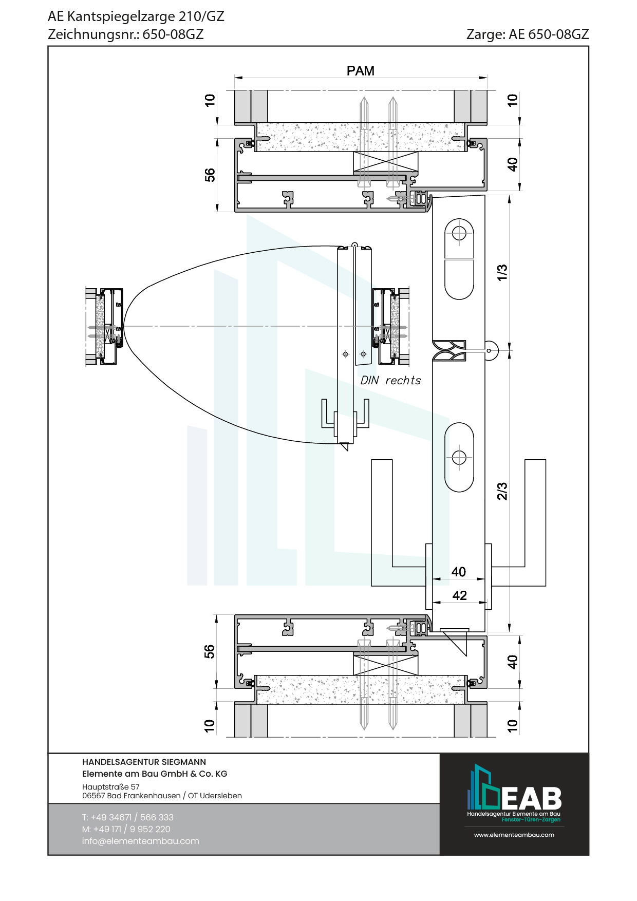
AE Kantspiegelzarge 210/GZ
mit Grundzarge und Schattennut zum wandbündigen Einbau, mit Raumspartür, ohne Wanddickenausgleich, stumpf
AE Raumspartürelement 650-10
Ausführung mit AE 255 Blockzarge, für fertige Wände, mit Raumspartürblatt, stumpf
AE Raumspartürelement 660-02
Aluminiumzarge Kantspiegel (AE 240) mit Raumspartür, stumpf, für fertige Wände, zweischalig, mit Wanddickenausgleich
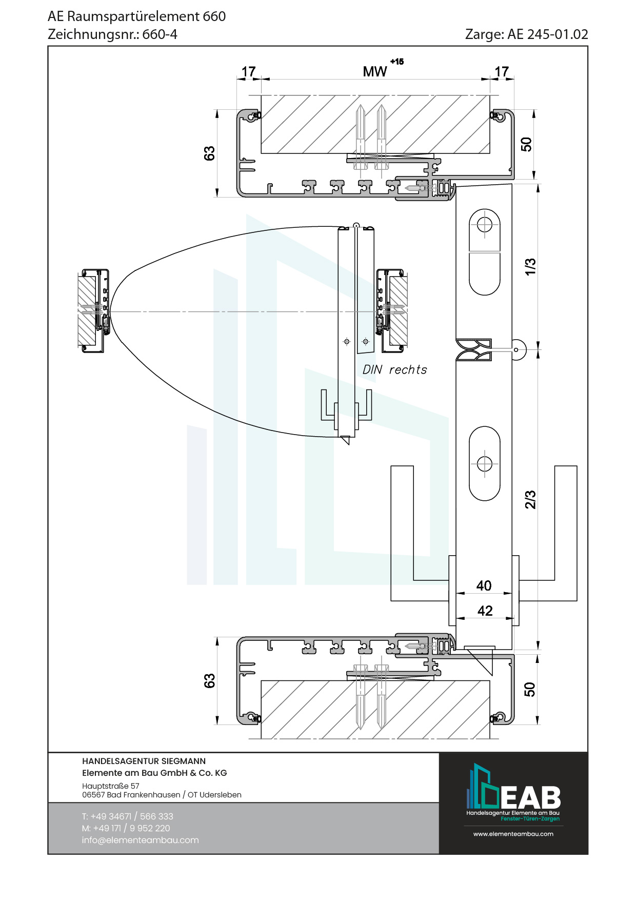
AE Raumspartürelement 660-04
Aluminiumzarge Rundspiegel (AE 245) mit Raumspartür, stumpf, für fertige Wände, zweischalig, mit Wanddickenausgleich
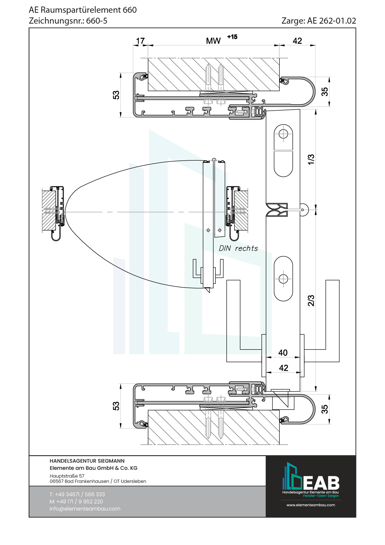
AE Raumspartürelement 660-05
Aluminiumzarge Fingerklemmschutz (AE 260) mit Raumspartür, stumpf, für fertige Wände, zweischalig, mit Wanddickenausgleich
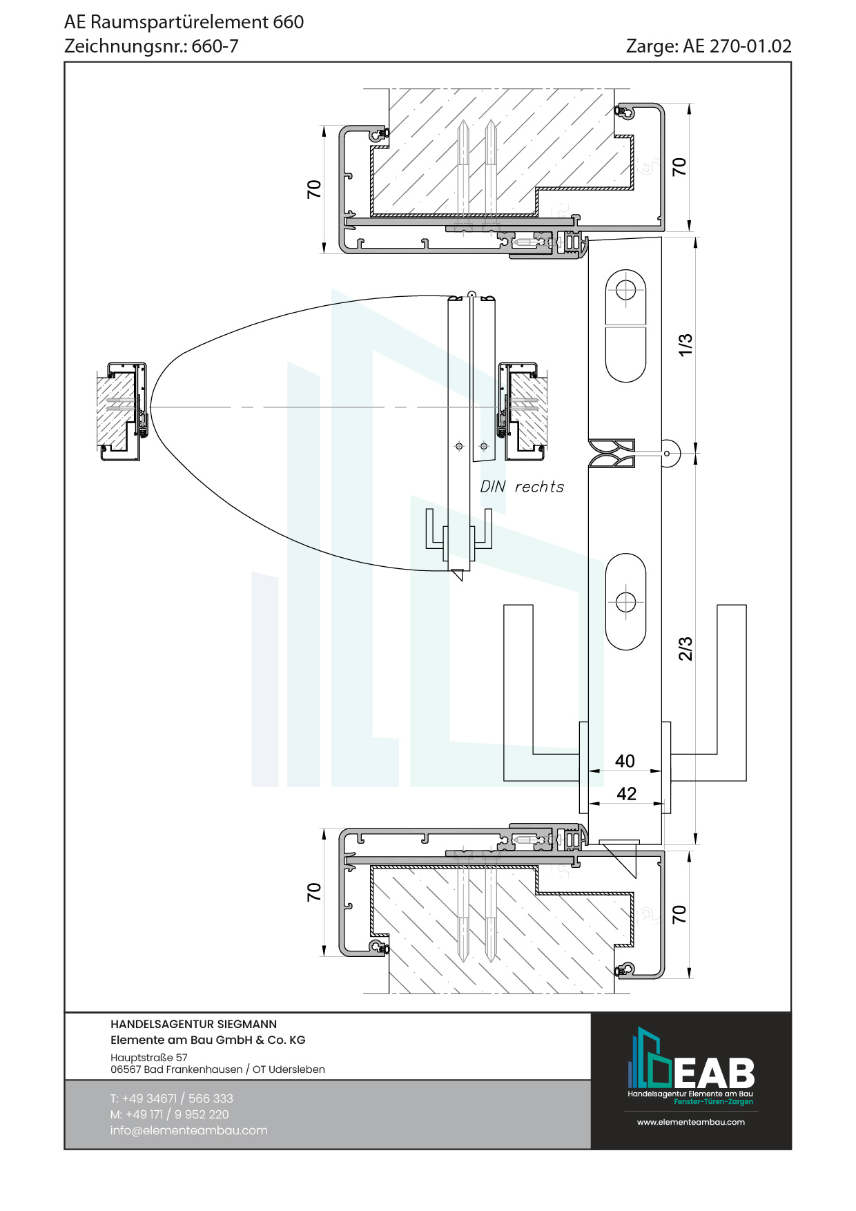
AE Raumspartürelement 660-7
Aluminiumzarge-Renovierungszarge (AE 270) mit Raumspartür, stumpf, für fertige Wände, zweischalig, mit Wanddickenausgleich
AE Raumspartürelement 670-02
Stahlzarge ein- / zweischalig mit Raumspartür, stumpf
AE Raumspartürelement 670-04
Stahlzarge zweischalig mit Raumspartür, stumpf
AE Raumspartürelement 670-06
Stahlzarge zweischalig mit Raumspartür, stumpf
AE Raumspartürelement 670-08
Stahlzarge einschalig mit Raumspartür, stumpf
AE Raumspartürelement 680-02
Holzzarge für fertige Wände mit Raumspartür, stumpf
Cookie-Einstellungen
Damit Sie unsere Seite vollständig nutzen können, sind Cookies erforderlich. Einige dieser Cookies sind notwendig, damit unsere Seite überhaupt funktioniert, andere Cookies sind nur für ein komfortables Nutzungserlebnis oder unsere Statistiken erforderlich. Sie können Ihre Einwilligung jederzeit widerrufen. Lesen Sie hier mehr.
Diese Website verwendet Cookies während Sie durch die Website navigieren. Von diesen Cookies werden die nach Bedarf kategorisierten Cookies in Ihrem Browser gespeichert, da sie für die Grundfunktionen der Website unerlässlich sind. Wir verwenden evtl. auch Cookies von Drittanbietern, mit denen wir analysieren und nachvollziehen können, wie Sie diese Website nutzen. Diese Cookies werden nur mit Ihrer Zustimmung in Ihrem Browser gespeichert. Sie haben auch die Möglichkeit, diese Cookies zu deaktivieren. Das Deaktivieren dieser Cookies kann sich jedoch auf Ihr Surferlebnis auswirken.
Notwendige Cookies sind für eine reibungslose Funktion der Website unbedingt erforderlich. Diese Kategorie enthält nur Cookies deren grundlegende Funktionen und Sicherheitsmerkmale der Website gewährleisten. Diese Cookies speichern keine persönlichen Informationen.
Cookie
Dauer
Beschreibung
cookielawinfo-checkbox-advertisement
1 year
The cookie is set by GDPR cookie consent to record the user consent for the cookies in the category "Advertisement".
cookielawinfo-checkbox-analytics
1 year
This cookies is set by GDPR Cookie Consent WordPress Plugin. The cookie is used to remember the user consent for the cookies under the category "Analytics".
cookielawinfo-checkbox-necessary
1 year
This cookie is set by GDPR Cookie Consent plugin. The cookies is used to store the user consent for the cookies in the category "Necessary".
cookielawinfo-checkbox-non-necessary
1 year
This cookie is set by GDPR Cookie Consent plugin. The cookies is used to store the user consent for the cookies in the category "Non-necessary".
cookielawinfo-checkbox-performance
1 year
This cookie is set by GDPR Cookie Consent plugin. The cookie is used to store the user consent for the cookies in the category "Performance".
Alle Cookies, welche für die Funktion der Website nicht unbedingt erforderlich sind und die speziell zum Sammeln personenbezogener Benutzerdaten über Analysen, Anzeigen und andere eingebettete Inhalte verwendet werden, werden als nicht erforderliche Cookies bezeichnet.
Funktionale Cookies helfen dabei, bestimmte Funktionen auszuführen, z. B. das Teilen des Inhalts der Website auf Social Media-Plattformen, das Sammeln von Feedbacks und andere Funktionen von Drittanbietern.
Diese Cookies werden verwendet, um die wichtigsten Leistungsindizes der Website zu verstehen und zu analysieren, um den Besuchern eine bessere Benutzererfahrung zu bieten.
Analytische Cookies werden verwendet, um zu verstehen, wie Besucher mit der Website interagieren. Diese Cookies liefern Informationen zu Metriken wie Besucherzahl, Absprungrate, Verkehrsquelle usw.
Werbe-Cookies werden verwendet, um Besuchern relevante Anzeigen und Marketingkampagnen bereitzustellen. Diese Cookies verfolgen Besucher auf verschiedenen Websites und sammeln Informationen, um angepasste Anzeigen bereitzustellen.